This unit is currently not available for lease. Click here to search our available properties.
Please check back later or fill out the Contact Broker Form below or General Contact Form for more information.
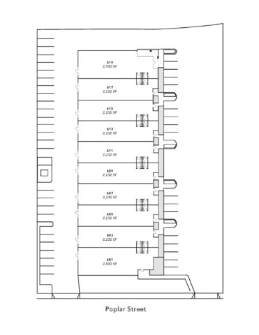
605 N. Poplar Street
Orange, CA 92868
Unit 605 features an open reception area, one (1) private office, a confernce room/additional office space, two (2) restrooms, and a small open storage area. The warehouse has one (1) ground level (GL) door with a 17 ft clearance.
(Automotive, cannabis, and gym uses are not acceptable uses.)
Details
Unit Features
- Unit Type: Industrial
- Parking Ratio: 2:1
- Square Feet: 2,232
Property Features
- Property Use Type: Industrial
- Property Construction: Concrete Tilt-Up
- High Speed Internet: Yes
- Nearby Freeways: 5, 22, & 57
Office Features
- Office Square Footage: 550
- Private Office(s): 1
- Open Office(s): 1
- Office Restroom(s): 2
- Reception: Yes
- Skylight: Yes
Warehouse Features
- Clearance: 17 ft
- # of Ground Level Doors: 1
- Ground Level Door Dimensions: 10'x12'
Power
- Amps: 100
- Volts: 120/208
Brochure / Floor Plan
Other Units You Might Be Interested In
| Property Address | City | Total SF | Office SF | Rent/Mo Rent/SF/Mo | CAM/Mo CAM/SF/Mo | Availability | Amps | Unit Type |
|---|---|---|---|---|---|---|---|---|
| 717 S. State College Blvd. Unit L | Fullerton | 2,045 | 600 | $3,170 $1.55 | $287 $0.14 | 04/01/26 | 100 | Industrial |
| 689 S. State College Blvd. Unit E | Fullerton | 1,500 | 244 | $2,325 $1.55 | $211 $0.14 | 05/01/26 | 100 | Industrial |
| 689 S. State College Blvd., Unit A | Fullerton | 2,134 | 244 | $3,308 $1.55 | $299 $0.14 | Pending Lease | 100 | Industrial |
| 613 N. Poplar Street | Orange | 2,232 | 1,000 | $3,572 $1.60 | $168 $0.075 | 04/01/26 | 100 | Industrial |
| 1334 E. Orangethorpe Avenue | Fullerton | 3,200 | 1,000 | $5,440 $1.70 | $320 $0.10 | 05/01/26 | 200 | Industrial |
| 3921 E. La Palma Avenue Unit R | Anaheim | 1,540 | 300 | $2,156 $1.40 | $185 $0.12 | Pending Lease | 100 | Industrial |
| 3921 E. La Palma Avenue Unit P Move In Special | Anaheim | 1,400 | 450 | $1,960 $1.40 | $168 $0.12 | 06/01/26 | 100 | Industrial |
| 3921 E. La Palma Avenue Unit B | Anaheim | 2,478 | 1,800 | $3,470 $1.40 | $298 $0.12 | 06/01/26 | 100 | Industrial |
| 3911 E. La Palma Avenue Unit Q Move In Special | Anaheim | 1,814 | 300 | $2,540 $1.40 | $218 $0.12 | Available Now | 100 | Industrial |
| 963 N. Eckhoff Street | Orange | 3,136 | 1,350 | $5,175 $1.65 | $251 $0.08 | Pending Lease | 100 | Industrial |
| 961 N. Eckhoff Street | Orange | 3,136 | 600 | $5,018 $1.60 | $251 $0.08 | Available Now | 100 | Industrial |





