499 Nibus Street Unit E/F
Brea, CA 92821
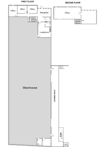
499-E Nibus offers a highly functional corner unit layout, featuring a second-floor office, dedicated lunchroom, and robust 400 amps of 3-phase power. The warehouse boasts an 18-foot clear height, is fully equipped with fire sprinklers, and provides excellent loading capabilities with two dock-high doors complete with load levelers. Conveniently located with easy access to both the 90 and 5 Freeways, this space is perfectly positioned for businesses seeking efficiency, flexibility, and connectivity.
Details
Unit Features
- Unit Type: Industrial
- Parking Ratio: 2:1
- Square Feet: 13,342
- Base Rent PSF/MO: $1.40
- CAM / NNN PSF/MO: $0.085
- Monthly Base Rent: $18,679.00
- Monthly CAM / NNN: $1,135.00
- Availability: Available Now
Property Features
- Property Use Type: Industrial
- Property Construction: Concrete Tilt-Up
- Fire Sprinklers: Yes
- Nearby Freeways: 57
Office Features
- Office Square Footage: 2,500
- Private Office(s): 4
- Open Office(s): 1
- Office Restroom(s): 2
- Reception: Yes
- Skylight: Yes
Warehouse Features
- Clearance: 18 ft
- # of Dock High Doors: 2
Power
- Amps: 400
- 3 Phase: Yes
- Volts: 120/208
Brochure / Floor Plan
For More Information Contact
David Kling
david@tricorealty.com
714-751-4420
Broker DRE #: 01965659
Erin Garner
erin@tricorealty.com
714-751-4420
Broker DRE #: 02228139
Other Units You Might Be Interested In
No results at this time.


