
499 Nibus Street
Brea, CA 92821
Discover flexible, move-in-ready industrial space at 499 Nibus Street, Brea, CA, a modern light industrial property offering immediate occupancy in a convenient Orange County location. Known as the Trico Nibus Industrial Building, this well-maintained facility delivers the functionality businesses need today—paired with the responsive, hands-on management that has defined Trico Realty, Inc. since 1968.
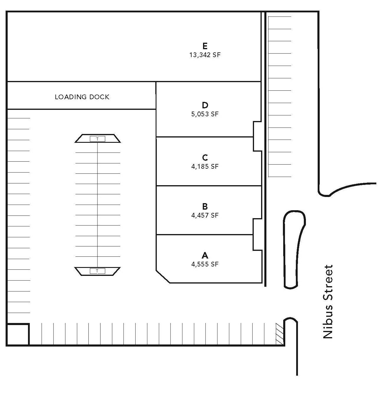
The property totals approximately 18,000 SF in one concrete tilt-up building, providing a durable, professional setting designed to support efficient day-to-day operations. Concrete tilt-up construction is a proven standard in industrial real estate, valued for strength, low maintenance requirements, and a clean exterior presence that reflects well on your business. The building is supported by modern fire/life safety systems, helping provide a safe and compliant environment for employees, visitors, and daily activity.
Operational comfort and control are enhanced with HVAC in each unit, allowing individualized climate settings and improved working conditions throughout the year. The property is also a well-lit, secure site, supporting a professional atmosphere for early mornings, late afternoons, and everyday business operations.
On-site convenience continues with a 2.0/1000 parking ratio, offering practical parking availability for staff and guests—an important advantage in active industrial corridors. The roof is a 4-ply built-up system (2010), a durable commercial roofing approach commonly used across industrial properties and known for reliable performance when properly maintained. Together, these building fundamentals create a dependable space that supports business continuity and long-term use.
Location is another key benefit. 499 Nibus Street provides easy access to the 57 Freeway, helping reduce travel time across North Orange County and supporting efficient routes for customers, vendors, and deliveries. Whether your business depends on local service coverage or regional distribution efficiency, this Brea location helps keep operations moving.
Backed by Trico Realty, Inc., you’ll benefit from a landlord known for straightforward leasing and responsive service. We focus on long-term relationships and practical solutions—so you can stay focused on running your business, not managing property issues.
Now leasing with immediate occupancy. Schedule a tour today, request leasing information, or call us direct at 714.751.4420 to learn more about current availability at 499 Nibus Street, Brea.
Details
- Property Use Type: Industrial
- Property Construction: Concrete Tilt-Up
- Fire Sprinklers: Yes
- Parking Ratio: 2:1
- Nearby Freeways: 57
No downloads currently available.
- Landscaping
- Landscaping Miscellaneous
- Water
- Exterior Lighting
- Fire Sprinklers
- Fire Sprinkler Monitoring
- Parking Lot Maintenance
- Backflow
For More Information Contact
David Kling
david@tricorealty.com
714-751-4420
Broker DRE #: 01965659
Erin Garner
erin@tricorealty.com
714-751-4420
Broker DRE #: 02228139
Leasing Availabilities
No results at this time.
