This unit is currently not available for lease. Click here to search our available properties.
Please check back later or fill out the Contact Broker Form below or General Contact Form for more information.

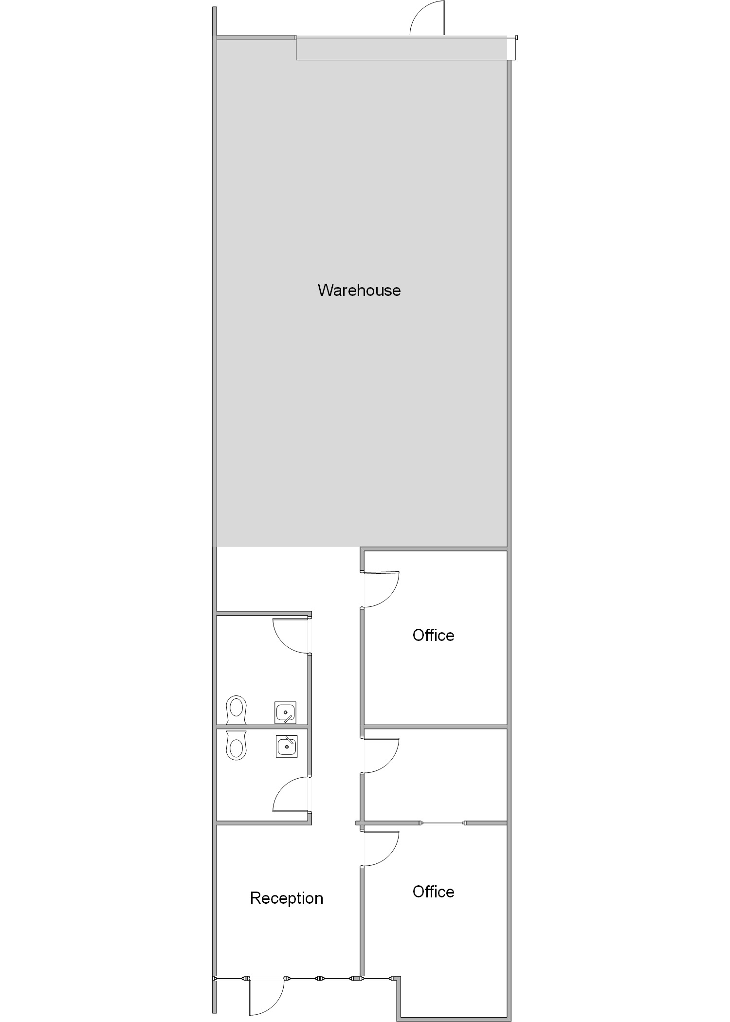
2841 Saturn Street Unit B
Brea, CA 92821
2841-B
Details
Unit Features
- Unit Type: Industrial
- Parking Ratio: 2:1
- Square Feet: 1,920
Property Features
- Property Use Type: Industrial
- Property Construction: Concrete Tilt-Up
- Fire Sprinklers: Yes
Office Features
- Office Square Footage: 761
Warehouse Features
- Clearance: 15 ft
- # of Ground Level Doors: 1
- Ground Level Door Dimensions: 10'x12'
Power
- Amps: 200
- 3 Phase: Yes
- Volts: 120/208
Brochure / Floor Plan
No downloads currently available.
Other Units You Might Be Interested In
| Property Address | City | Total SF | Office SF | Rent/Mo Rent/SF/Mo | CAM/Mo CAM/SF/Mo | Availability | Amps | Unit Type |
|---|---|---|---|---|---|---|---|---|
| 765 S. State College Blvd. Unit D | Fullerton | 1,200 | 850 | $2,100 $1.75 | $169 $0.14 | 06/01/26 | 100 | Industrial |
| 717 S. State College Blvd. Unit L | Fullerton | 2,045 | 600 | $3,170 $1.55 | $287 $0.14 | Pending Lease | 100 | Industrial |
| 699 S. State College Blvd. Unit H | Fullerton | 1,200 | 200 | $1,860 $1.55 | $169 $0.14 | 06/01/26 | 100 | Industrial |
| 689 S. State College Blvd. Unit E | Fullerton | 1,500 | 244 | $2,325 $1.55 | $211 $0.14 | 05/01/26 | 100 | Industrial |
| 689 S. State College Blvd., Unit A | Fullerton | 2,134 | 244 | $3,308 $1.55 | $299 $0.14 | Pending Lease | 100 | Industrial |
| 2841 Saturn Street Unit D Move In Special | Brea | 1,920 | 590 | $2,688 $1.40 | $250 $0.13 | Available Now | 200 | Industrial |
| 2923 Saturn Street Unit E | Brea | 2,016 | 665 | $3,226 $1.60 | $283 $0.14 | Available Now | 100 | Industrial |
| 2913 Saturn Street Unit C | Brea | 2,040 | 1,065 | $3,264 $1.60 | $286 $0.14 | 06/01/26 | 100 | Industrial |
| 1312 E. Orangethorpe Avenue | Fullerton | 1,200 | 550 | $2,040 $1.70 | $120 $0.10 | 06/01/26 | 100 | Industrial |
| 3921 E. La Palma Avenue Unit R | Anaheim | 1,540 | 300 | $2,156 $1.40 | $185 $0.12 | Pending Lease | 100 | Industrial |
| 3921 E. La Palma Avenue Unit P Move In Special | Anaheim | 1,400 | 450 | $1,960 $1.40 | $168 $0.12 | 06/01/26 | 100 | Industrial |
| 3921 E. La Palma Avenue Unit B | Anaheim | 2,478 | 1,800 | $3,470 $1.40 | $298 $0.12 | 06/01/26 | 100 | Industrial |
| 3911 E. La Palma Avenue Unit Q Move In Special | Anaheim | 1,814 | 300 | $2,540 $1.40 | $218 $0.12 | Available Now | 100 | Industrial |
