This unit is currently not available for lease. Click here to search our available properties.
Please check back later or fill out the Contact Broker Form below or General Contact Form for more information.
607 N. Poplar Street
Orange, CA 92868
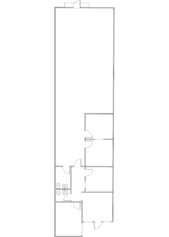
Unit 607 features three(3) offices, two(2) restrooms, a reception area, and a warehouse. The warehouse has one(1) ground level door with a fourteen (14′) foot clearance.
The office in Unit 607 can be demoed as needed.
Trico Poplar Business Park is a multi tenant industrial business park located in Orange, CA.
Details
Unit Features
- Unit Type: Industrial
- Parking Ratio: 2:1
- Square Feet: 2,232
Property Features
- Property Use Type: Industrial
- Property Construction: Concrete Tilt-Up
- High Speed Internet: Yes
- Nearby Freeways: 5, 22, & 57
Office Features
- Office Square Footage: 500
Warehouse Features
- Clearance: 14 ft
- # of Ground Level Doors: 1
- Ground Level Door Dimensions: 10'x12'
Power
- Amps: 100
- 3 Phase: Yes
- Volts: 120/208
Brochure / Floor Plan
Other Units You Might Be Interested In
| Property Address | City | Total SF | Office SF | Rent/Mo Rent/SF/Mo | CAM/Mo CAM/SF/Mo | Availability | Amps | Unit Type |
|---|---|---|---|---|---|---|---|---|
| 2860 Gretta Lane, Unit J | Anaheim | 1,296 | - | $2,009 $1.55 | $195 $0.15 | 03/01/26 | 100 | Industrial |
| 717 S. State College Blvd. Unit L | Fullerton | 2,045 | 600 | $3,170 $1.55 | $287 $0.14 | 04/01/26 | 100 | Industrial |
| 689 S. State College Blvd., Unit A | Fullerton | 2,134 | 244 | $3,308 $1.55 | $299 $0.14 | Available Now | 100 | Industrial |
| 3921 E. La Palma Avenue Unit R Move In Special | Anaheim | 1,540 | 300 | $2,156 $1.40 | $185 $0.12 | 30 Day Notice | 100 | Industrial |
| 3921 E. La Palma Avenue Unit Q Move In Special | Anaheim | 1,540 | 300 | $2,156 $1.40 | $185 $0.12 | 05/01/26 | 100 | Industrial |
| 3911 E. La Palma Avenue Unit Q Move In Special | Anaheim | 1,814 | 300 | $2,540 $1.40 | $218 $0.12 | Available Now | 100 | Industrial |
| 963 N. Eckhoff Street | Orange | 3,136 | 1,350 | $5,175 $1.65 | $189 $0.06 | Available Now | 100 | Industrial |





