This unit is currently not available for lease. Click here to search our available properties.
Please check back later or fill out the Contact Broker Form below or General Contact Form for more information.
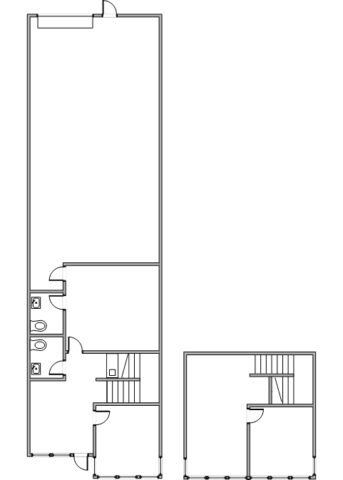
555 W. Lambert Road Unit K
Brea, CA 92821
Trico Lambert Center is located off of a major thoroughfare, 57 Freeway, and nearby amenities! 555 W. Lambert Rd, Suite K is a two story suite featuring multiple private offices, open multi-purpose room, coffee bar, and warehouse space. Inquiry today!
Details
Unit Features
- Unit Type: Industrial
- Parking Ratio: 2:1
- Square Feet: 2,266
Property Features
- Property Use Type: Industrial
- Property Construction: Concrete Tilt-Up
- Fire Sprinklers: Yes
Office Features
- Office Square Footage: 1,031
- Private Office(s): 2
- Open Office(s): 2
- Office Restroom(s): 2
- Reception: Yes
- Skylight: Yes
Warehouse Features
- Clearance: 15 ft
- # of Ground Level Doors: 1
- Ground Level Door Dimensions: 12' x 12'
Power
- Amps: 100
- 3 Phase: Yes
- Volts: 120/208
Brochure / Floor Plan
Other Units You Might Be Interested In
| Property Address | City | Total SF | Office SF | Rent/Mo Rent/SF/Mo | CAM/Mo CAM/SF/Mo | Availability | Amps | Unit Type |
|---|---|---|---|---|---|---|---|---|
| 717 S. State College Blvd. Unit L | Fullerton | 2,045 | 600 | $3,170 $1.55 | $287 $0.14 | Pending Lease | 100 | Industrial |
| 699 S. State College Blvd. Unit K | Fullerton | 2,045 | 200 | $3,170 $1.55 | $225 $0.11 | 06/01/26 | 100 | Industrial |
| 689 S. State College Blvd. Unit E | Fullerton | 1,500 | 244 | $2,325 $1.55 | $211 $0.14 | 05/01/26 | 100 | Industrial |
| 2841 Saturn Street Unit D Move In Special | Brea | 1,920 | 590 | $2,688 $1.40 | $250 $0.13 | Available Now | 200 | Industrial |
| 2923 Saturn Street Unit E | Brea | 2,016 | 665 | $3,226 $1.60 | $283 $0.14 | Available Now | 100 | Industrial |
| 2913 Saturn Street Unit C | Brea | 2,040 | 1,065 | $3,264 $1.60 | $286 $0.14 | 06/01/26 | 100 | Industrial |
| 1334 E. Orangethorpe Avenue | Fullerton | 3,200 | 1,000 | $5,440 $1.70 | $320 $0.10 | 05/01/26 | 200 | Industrial |
| 1251 S. Beach Blvd. Unit F | La Habra | 2,223 | 700 | $6,669 $3.00 | $712 $0.32 | 06/01/26 | 100 | Retail |



