This unit is currently not available for lease. Click here to search our available properties.
Please check back later or fill out the Contact Broker Form below or General Contact Form for more information.
2931 Grace Lane Unit A
Costa Mesa, CA 92626
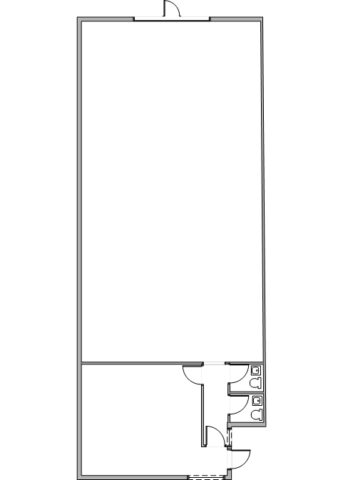
Unit 2931-A is a street-front unit featuring a large open entry reception area and one (1) Private restroom. luxury vinyl plank floors and LED lights throughout office. It is also set-up for Time Warner Busniess Cable. The warehouse features sealed floors and a ground-level door with a 12’x12′ roll up with 14′ clearance and fire spinklers.
A great home for small bunsiness located in north Costa Mesa. Private doorways, skylights, and carpeted offices are just a few of the amenities at Grace Lane.
At the of a cul-de- sac, Grace Lane offers convenient to the 55, 73, and 405 freeways as well as easy access to John Wayne Airport.
Details
Unit Features
- Unit Type: Industrial
- Parking Ratio: 2:1
- Square Feet: 2,160
Property Features
- Property Use Type: Industrial
- Property Construction: Concrete Tilt-Up
- Fire Sprinklers: Yes
- Nearby Freeways: 55, 73, & 405
Office Features
- Office Square Footage: 200
- Office Restroom(s): 2
- Reception: Yes
- Skylight: Yes
Warehouse Features
- Clearance: 14 ft
- # of Ground Level Doors: 1
- Ground Level Door Dimensions: 12x12
Power
- Amps: 100
- 3 Phase: Yes
- Volts: 120/208
Brochure / Floor Plan
Other Units You Might Be Interested In
| Property Address | City | Total SF | Office SF | Rent/Mo Rent/SF/Mo | CAM/Mo CAM/SF/Mo | Availability | Amps | Unit Type |
|---|---|---|---|---|---|---|---|---|
| 2941 Grace Lane Unit C | Costa Mesa | 1,440 | 340 | $3,096 $2.15 | $144 $0.10 | 02/01/26 | 100 | Industrial |
| 951 Newhall Street | Costa Mesa | 2,900 | 200 | $6,032 $2.08 | $0 - | Contact for Availability | 100 | Industrial |
| 1725 Monrovia Avenue Unit C3 | Costa Mesa | 1,400 | 300 | $3,290 $2.35 | $140 $0.10 | 01/01/26 | 100 | Industrial |




