This unit is currently not available for lease. Click here to search our available properties.
Please check back later or fill out the Contact Broker Form below or General Contact Form for more information.
2913 Saturn Street Unit I
Brea, CA 92821
2913-I
Details
Unit Features
- Unit Type: Industrial
- Parking Ratio: 2.5:1
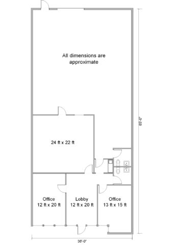
- Square Feet: 3,230
Property Features
- Property Use Type: Industrial
- Property Construction: Concrete Tilt-Up
- Fire Sprinklers: Yes
- Nearby Freeways: 57
Office Features
- Office Square Footage: 1,255
Warehouse Features
- Clearance: 15 ft
- # of Ground Level Doors: 1
- Ground Level Door Dimensions: 10'x12'
Power
- Amps: 100
- 3 Phase: Yes
- Volts: 120/208
Brochure / Floor Plan
No downloads currently available.
Other Units You Might Be Interested In
| Property Address | City | Total SF | Office SF | Rent/Mo Rent/SF/Mo | CAM/Mo CAM/SF/Mo | Availability | Amps | Unit Type |
|---|---|---|---|---|---|---|---|---|
| 2903 Saturn Street Unit H/I | Brea | 3,360 | 950 | $5,309 $1.58 | $437 $0.13 | Available Now | 100 | Industrial |
| 565 W. Lambert Road Unit B | Brea | 3,069 | 1,500 | $4,911 $1.60 | $399 $0.13 | 03/01/26 | 100 | Industrial |



