1725 Monrovia Avenue Unit C3
Costa Mesa, CA 92627
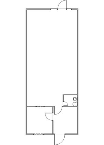
1725 Monrovia Ave, Unit C3, Costa Mesa (±1,400 SF Industrial Unit)
• West Side Costa Mesa
• ±1,100 SF warehouse / ±300 SF office
• Reception Area + 1 Private Office with LVP flooring and recessed lighting
• One restroom
• Warehouse with 12’ ceiling height and 10’x10’ grade-level door
This unit will be tenant occupied through November 30, 2025. Please contact me to set up a showing appointment and do not disturb the tenant, thank you.
*Automotive, woodworking, and cannabis-related uses are not permitted*
Details
Unit Features
- Unit Type: Industrial
- Parking Ratio: 2:1
- Square Feet: 1,400
- Base Rent PSF/MO: $2.35
- CAM / NNN PSF/MO: $0.10
- Monthly Base Rent: $3,290.00
- Monthly CAM / NNN: $140.00
- Availability: 01/01/2026
Property Features
- Property Use Type: Industrial
- Property Construction: Concrete Tilt-Up
- High Speed Internet: Yes
- Nearby Freeways: 55
Office Features
- Office Square Footage: 300
- Private Office(s): 1
- Reception: Yes
- Skylight: Yes
Warehouse Features
- Clearance: 12 ft
- # of Ground Level Doors: 1
- Ground Level Door Dimensions: 10'x10'
Power
- Amps: 100
- 3 Phase: Yes
- Volts: 120/208
Brochure / Floor Plan
For More Information Contact
Parker Roberts
parker@tricorealty.com
714-751-4420
Broker DRE #: 01994597
Other Units You Might Be Interested In
| Property Address | City | Total SF | Office SF | Rent/Mo Rent/SF/Mo | CAM/Mo CAM/SF/Mo | Availability | Amps | Unit Type |
|---|---|---|---|---|---|---|---|---|
| 1725 Monrovia Avenue Unit C4 | Costa Mesa | 1,400 | 300 | $3,290 $2.35 | $140 $0.10 | 01/01/2026 | 100 | Industrial |





