This unit is currently not available for lease. Click here to search our available properties.
Please check back later or fill out the Contact Broker Form below or General Contact Form for more information.
2941 E. La Jolla Street
Anaheim, CA 92806
NNN Investment Sale, 20+ year manufacturing tenant heavily invested in building.
34,500 SF Free Standing Industrial/Manufacturing building for sale in the heart of North East Anaheim.
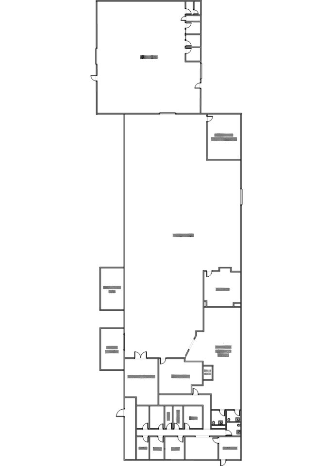
The 2941 E. La Jolla property has a great location situated on the corner of La Jolla and N. Red Gum St. with easy access to the 57 and 91 Freeways. The building consists of: 6,000 SF of office space; 19,500 SF of manufacturing space; 9,000 SF of warehouse space with 20 foot clearance and 6, 12X16, overhead doors; 2000 AMPS of 277/480 Volt, 3 phase power that is fully distributed throughout the building via 18 electrical subpanels.
La Jolla is occupied by a strong tenant on an AIR, NNN Lease through 2026. This building would be a great coupon clipper for any investor looking for good location and ease of management.
Other features: clean room, break room, shop offices, $200,000 in recent upgrades
Due Diligence Package delivered upon execution of non-disclosure agreement
Details
Unit Features
- Unit Type: Industrial
- Parking Ratio: 2:1
- Square Feet: 34,500
Property Features
- Property Use Type: Industrial
- Property Construction: Concrete Tilt-Up
- Fire Sprinklers: Yes
- High Speed Internet: Yes
Office Features
- Office Square Footage: 6,000
- Private Office(s): 6+
- Open Office(s): 3
- Office Restroom(s): 4
- Reception: Yes
- Skylight: Yes
Warehouse Features
- Clearance: 20 ft
- # of Ground Level Doors: 6
- Ground Level Door Dimensions: 12x16
Power
- Amps: 2000
- 3 Phase: Yes
- Volts: 277/480
Brochure / Floor Plan
Other Units You Might Be Interested In
No results at this time.




