This unit is currently not available for lease. Click here to search our available properties.
Please check back later or fill out the Contact Broker Form below or General Contact Form for more information.
2930 Grace Lane Unit A
Costa Mesa, CA 92626
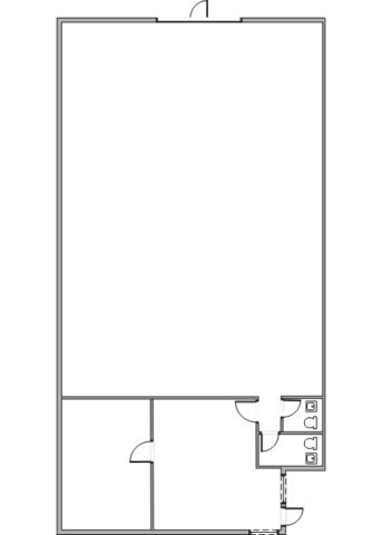
Unit 2930-A features a carpeted reception area, one (1) private office, a warehouse and two (2) restrooms. It also features exterior security lighting, 3 Phase ample power and drive around building.
Details
Unit Features
- Unit Type: Industrial
- Parking Ratio: 2:1
- Square Feet: 2,304
Property Features
- Property Use Type: Industrial
- Property Construction: Concrete Tilt-Up
- Fire Sprinklers: Yes
- Nearby Freeways: 55, 73, & 405
Office Features
- Office Square Footage: 300
Warehouse Features
- Clearance: 14 ft
- # of Ground Level Doors: 1
- Ground Level Door Dimensions: 12'x12'
Power
- Amps: 100
- Volts: 120/208
Brochure / Floor Plan
Other Units You Might Be Interested In
| Property Address | City | Total SF | Office SF | Rent/Mo Rent/SF/Mo | CAM/Mo CAM/SF/Mo | Availability | Amps | Unit Type |
|---|---|---|---|---|---|---|---|---|
| 951 Newhall Street | Costa Mesa | 2,900 | 200 | $6,032 $2.08 | $0 - | Contact for Availability | 100 | Industrial |
| 1725 Monrovia Avenue Unit C4 | Costa Mesa | 1,400 | 300 | $3,290 $2.35 | $140 $0.10 | Available Now | 100 | Industrial |
| 2941 Grace Lane Unit C | Costa Mesa | 1,440 | 340 | $3,096 $2.15 | $144 $0.10 | 02/01/26 | 100 | Industrial |




