This unit is currently not available for lease. Click here to search our available properties.
Please check back later or fill out the Contact Broker Form below or General Contact Form for more information.
22775 Savi Ranch Parkway Unit C
Yorba Linda, CA 92887
Trico Savi Business Park
Full Commission
Drive around building
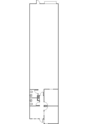
Reception plus two offices
Details
Unit Features
- Unit Type: Industrial
- Parking Ratio: 2.5:1
- Square Feet: 2,400
Property Features
- Property Use Type: Industrial
- Property Construction: Concrete Tilt-Up
- High Speed Internet: Yes
- Nearby Freeways: 55, 91, & 241
Office Features
- Office Square Footage: 600
- Private Office(s): 2
- Office Restroom(s): 1
- Reception: Yes
- Skylight: Yes
Warehouse Features
- Clearance: 16 ft
- # of Ground Level Doors: 1
- Ground Level Door Dimensions: 10'x12'
Power
- Amps: 100
- 3 Phase: Yes
- Volts: 120/208
Brochure / Floor Plan
Other Units You Might Be Interested In
| Property Address | City | Total SF | Office SF | Rent/Mo Rent/SF/Mo | CAM/Mo CAM/SF/Mo | Availability | Amps | Unit Type |
|---|---|---|---|---|---|---|---|---|
| 22835 Savi Ranch Parkway Unit D | Yorba Linda | 2,232 | 700 | $3,683 $1.65 | $313 $0.14 | Available Now | 100 | Industrial |







