This unit is currently not available for lease. Click here to search our available properties.
Please check back later or fill out the Contact Broker Form below or General Contact Form for more information.
1831/1849 W. Sequoia Avenue
Orange, CA 92868
Trico Sequoia is a professionally managed, Two Tenant Building, conveniently located to local amenities, 57/22/5 Freeways, and Angels Stadium.
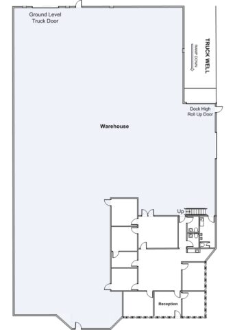
Suite 1831 features 7 offices, 2 open collaboration areas, ample warehouse space with skylights, and a dedicated truck well / dock high loading. CAOE is estimated at $0.025/sf/mo.
Details
Unit Features
- Unit Type: Industrial
- Parking Ratio: 2:1
- Square Feet: 30,000
- Availability: Pending Lease
Property Features
- Property Use Type: Industrial
- Property Construction: Concrete Tilt-Up
- Fire Sprinklers: Yes
- Nearby Freeways: 5, 22, & 57
Office Features
- Office Square Footage: 2,338
- Open Office(s): 2
- Office Restroom(s): 2
- Reception: Yes
- Skylight: Yes
Warehouse Features
- Clearance: 18 ft
- # of Ground Level Doors: 1
- # of Dock High Doors: 1
Power
- Amps: 600
- 3 Phase: Yes
- Volts: 277/480
Brochure / Floor Plan
Other Units You Might Be Interested In
No results at this time.





