This unit is currently not available for lease. Click here to search our available properties.
Please check back later or fill out the Contact Broker Form below or General Contact Form for more information.
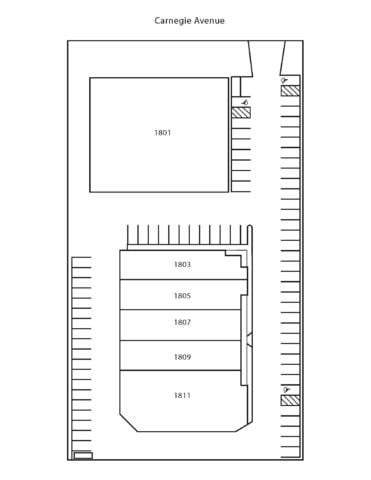
1803 Carnegie Avenue
Santa Ana, CA 92705
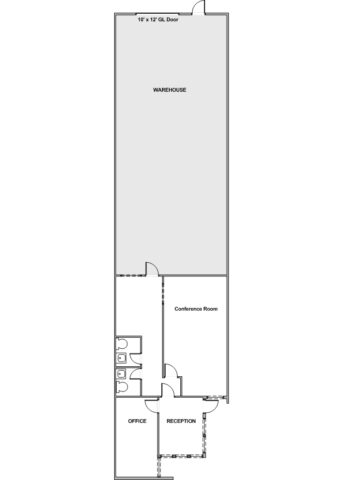
Unit 1803 is a CORNER UNIT featuring a window lined reception area, one private offices and a large conference room. The warehouse has fourteen foot clearance and a ground level (GL) roll up door.
Trico Carnegie Business Park is a mulit-tenant industrial park located in Santa Ana. It is conveniently located near the 55 freeway, Tustin Legacy, and the District.
*No cannabis, automotive, nor fitness related uses are accepted*
Details
Unit Features
- Unit Type: Industrial
- Parking Ratio: 2:1
- Square Feet: 2,900
Property Features
- Property Use Type: Industrial
- Property Construction: Concrete Tilt-Up
- Nearby Freeways: 55
Office Features
- Office Square Footage: 1,220
- Private Office(s): 1
- Open Office(s): 1
- Office Restroom(s): 2
- Reception: Yes
- Skylight: Yes
Warehouse Features
- Clearance: 14 ft
- # of Ground Level Doors: 1
- Ground Level Door Dimensions: 10'x12'
Power
- Amps: 200
- 3 Phase: Yes
- Volts: 120/240
Brochure / Floor Plan
Other Units You Might Be Interested In
No results at this time.



