This unit is currently not available for lease. Click here to search our available properties.
Please check back later or fill out the Contact Broker Form below or General Contact Form for more information.
14751 Franklin Avenue Unit A
Tustin, CA 92780
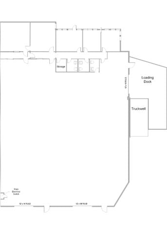
14751 Franklin Ave, Suite A features multiple private offices with nice window lines, reception area, storage room, and two restrooms. The warehouse has 18′ clearence with natural light from the skylights, two grade level roll up doors, and a private truckwell with dock loading. As an added bonus, the building has full drive around capability.
Details
Unit Features
- Unit Type: Industrial
- Parking Ratio: 2:1
- Square Feet: 9,700
Property Features
- Property Use Type: Industrial
- Property Construction: Concrete Tilt-Up
- Fire Sprinklers: Yes
- High Speed Internet: Yes
- Nearby Freeways: 5
Office Features
- Office Square Footage: 1,000
- Private Office(s): 2
- Open Office(s): 2
- Office Restroom(s): 2
- Reception: Yes
- Skylight: Yes
Warehouse Features
- Clearance: 18 ft
- # of Ground Level Doors: 2
- Ground Level Door Dimensions: 12'x14'
- # of Dock High Doors: 1
- Dock High Door Dimensions: 12'x10'
Power
- Amps: 400
- 3 Phase: Yes
- Volts: 120/208
Brochure / Floor Plan
No downloads currently available.
Other Units You Might Be Interested In
No results at this time.



