This unit is currently not available for lease. Click here to search our available properties.
Please check back later or fill out the Contact Broker Form below or General Contact Form for more information.
14741 Franklin Avenue Unit B
Tustin, CA 92780
14741-B
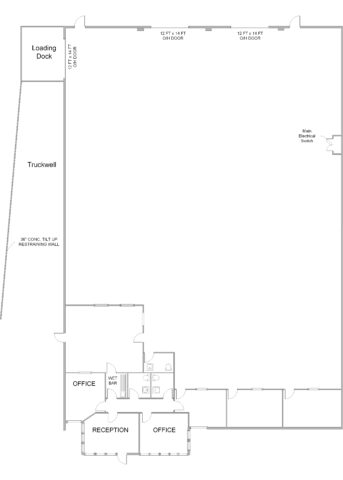
Details
Unit Features
- Unit Type: Industrial
- Parking Ratio: 2:1
- Square Feet: 12,300
Property Features
- Property Use Type: Industrial
- Property Construction: Concrete Tilt-Up
- Fire Sprinklers: Yes
- High Speed Internet: Yes
- Nearby Freeways: 5
Office Features
- Office Square Footage: 1,960
- Private Office(s): 4
- Open Office(s): 2
- Office Restroom(s): 2
- Reception: Yes
- Skylight: Yes
Warehouse Features
- Clearance: 16 ft
- # of Ground Level Doors: 1
- Ground Level Door Dimensions: 12'x14'
- # of Dock High Doors: 1
- Dock High Door Dimensions: 10'x12'
Power
- Amps: 100
- 3 Phase: Yes
- Volts: 120/208
Brochure / Floor Plan
Other Units You Might Be Interested In
| Property Address | City | Total SF | Office SF | Rent/Mo Rent/SF/Mo | CAM/Mo CAM/SF/Mo | Availability | Amps | Unit Type |
|---|---|---|---|---|---|---|---|---|
| 225 Paularino Avenue | Costa Mesa | 12,000 | 2,400 | $22,200 $1.85 | $1,800 $0.15 | 02/01/26 | 400 | Industrial |
| 1801 Carnegie Avenue | Santa Ana | 12,000 | 2,850 | $20,400 $1.70 | $1,080 $0.09 | Available Now | 400 | Industrial |



