
3100 Pullman Street
Costa Mesa, CA 92626
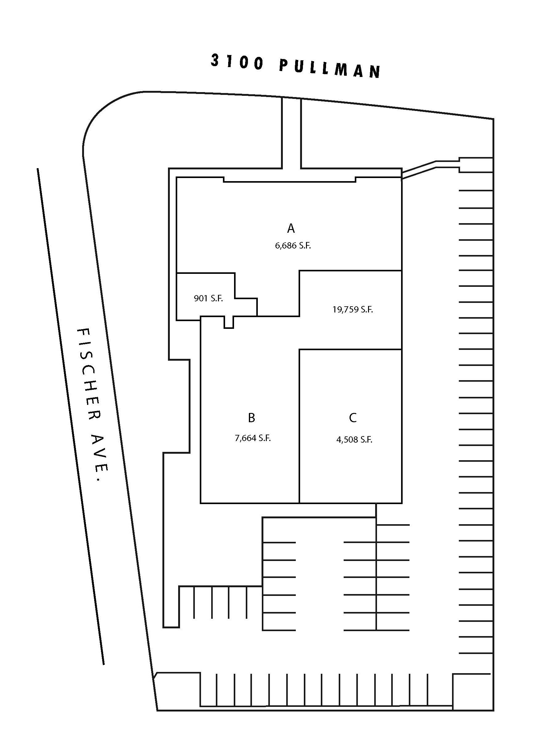
Trico Pullman is a single-story multi-tenant office/flex business park. It is located near the 55, 73 and 405 Freeways with close access to John Wayne Airport. Highlights include ample surface level parking, high speed internet, and high image office interiors.
Details
- Property Use Type: Industrial
- Property Construction: Concrete Tilt-Up
- Parking Ratio: 3.9:1
- Nearby Freeways: 55, 73, 405, Airport
No downloads currently available.
*The below CAM items are subject to change.
- Landscaping
- Landscaping Miscellaneous
- Water
- Trash
- Trash Miscellaneous
- Sweeping
- Exterior Lighting
- Cleaning/Janitorial
- Parking Lot Maintenance
- Backflow
For More Information Contact
Parker Roberts
parker@tricorealty.com
714-751-4420
Broker DRE #: 01994597
David Kling
david@tricorealty.com
714-751-4420
Broker DRE #: 01965659
Leasing Availabilities
No results at this time.
